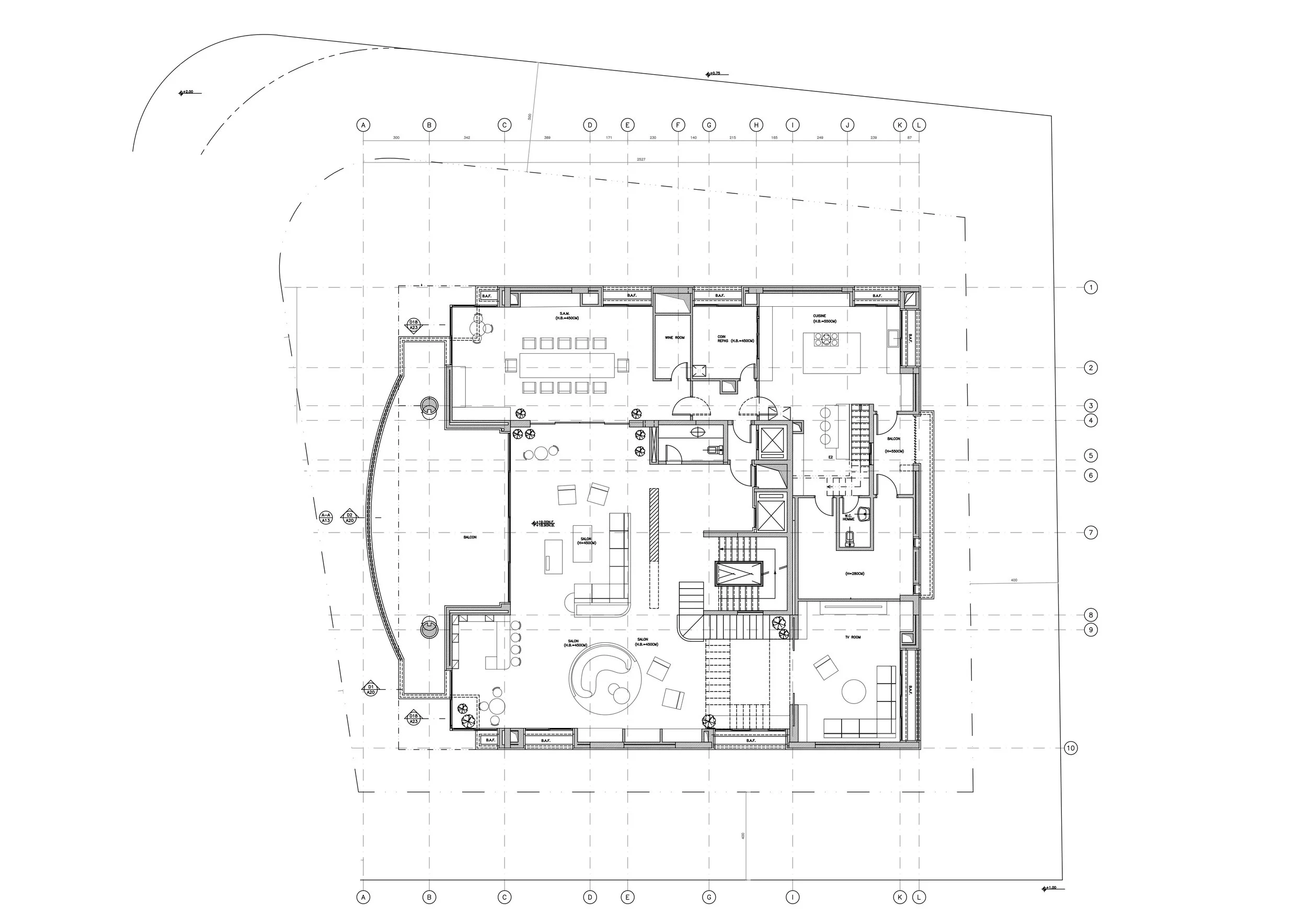
ATRIUM PENTHOUSE


INFO


LOCATION: Horsh Tabet, Lebanon
PROGRAM: Residential
BUILT-UP AREA: 900 sqm
STATUS: Concept Design
YEAR: 2024

DESCRIPTION


This penthouse refurbishment focuses on transforming a spacious and intimidating triplex apartment into an inviting home tailored for modern family living. The design approach addresses the challenge of balancing grandeur with warmth by reimagining the layout to create distinct yet interconnected zones. These spaces provide intimacy and comfort while maintaining a cohesive flow throughout the home. The integration of brown copper panels introduces warmth and refinement, complemented by greenery that assures vibrance to the house whilst giving prominence to the central patio. Heritage historical pieces were carefully preserved and highlighted, maintaining a connection to the home’s original character while introducing contemporary elements. The result is a thoughtfully designed residence that offers a versatile and welcoming environment for family life.

MASSING DIAGRAM